Schul- und Gemeindehaus

Projektinfos
Ort
Sonnenberg, Hefenhofen, Thurgau
Jahr
2023 -
Auftrag
Offenes Verfahren, 1. Preis
Programm
Schulhaus, Kindergarten, Mehrzweckraum, Schulleitung, Lehrerzimmer, Gemeindeverwaltung und Schülerbibliothek
Bauherrschaft
Volksschulgemeinde Amriswil, Hefenhofen Sommeri & Gemeinde Hefenhofen
Status
Bauprojekt
Architektur
YLVI, Basel
Team
Carmen Imhof, Clemens Spaar, Eva Schneider, Gian Fenner, Henning Weiss, Jan Güntensperger, Ladina Thurnherr, Nils Frey, Luca Schmidlin
Projektpartner
Construct (Baumanagement), Rolf Soller (Bauingenieur Massiv), B3 Klob (Bauingenieur Holz), IBG Engineerung (Elektroplanung), L. Renda (Heizungsplanung), Ackermann (Lüftungsplanung), Häberlin Engineerung (Sanitärplanung), Mühlebach Partner (Bauphysik), B3 Kolb (Brandschutz), NRP (Verkehrsplanung), Umraum (Landschaftsarchitektur)
Jurybericht
Link
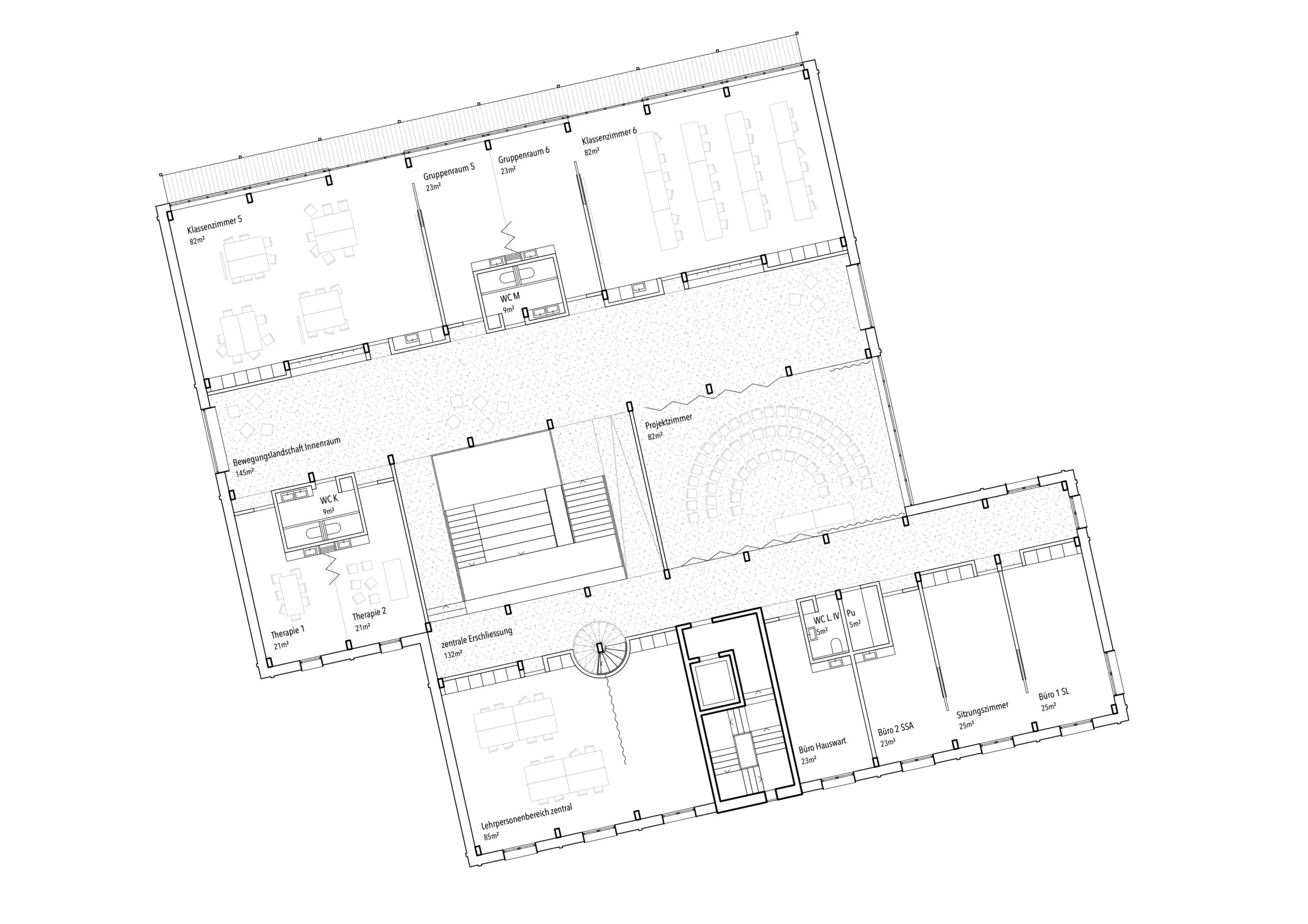
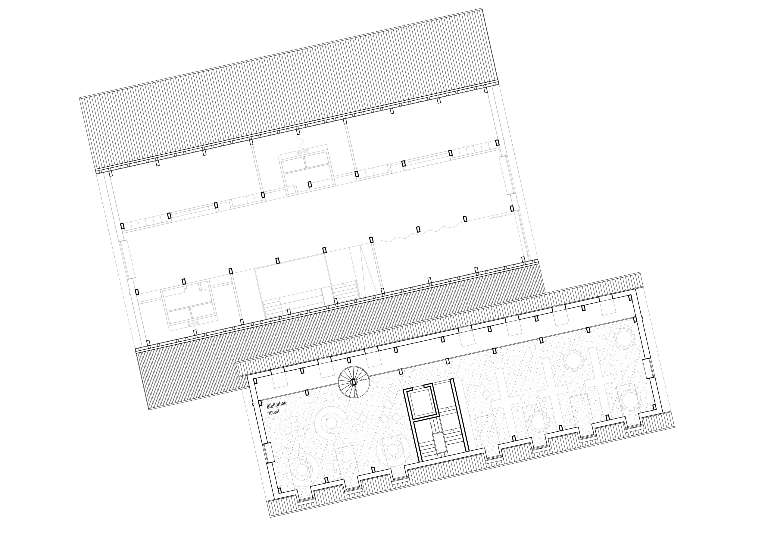
Projektbeschrieb
Der Weiler Sonnenberg liegt auf einer Erhöhung im geografischen und gefühlten Zentrum von Hefenhofen. Die Topografie fällt südlich ab und bietet an klaren Tagen einen ausgezeichneten Blick in die Alpen. Der Weiler setzt sich aus Wohngebäuden, einzelnen Landwirtschaftsbauten und der Schulanlage zusammen. Durch den gestiegenen Bedarf an Schulräumlichkeiten ist eine Erweiterung des bestehenden Ensembles nötig. Um die Anlage als Zentrum des Ortes zu festigen, soll die Erweiterung zusammen mit der Gemeinde erfolgen. Der vorgeschlagene Neubau orientiert sich in der Setzung an dem heterogen gegliederten Bestand des Kontexts. Durch seine Volumetrie strukturiert das Gebäude die Außenräume neu und klärt dadurch die Adressierung der verschiedenen Nutzungen. Gemeinde und Schule sind im Inneren subtil miteinander verwoben, um möglichst viele Synergien zu nutzen.
Kontext
Städtebau
No ACF gallery field data found
Pläne
Bilder
Konstruktion
YLVI GmbH
Architektur Kollektiv
Auf dem Wolf 13
4052 Basel
Kontakt
+41 61 563 30 09
CHE-326.186.65
crossarrow-right